素面之缘(张慧芹 建筑师)
人和人之间的缘分有多种,其中有一种特别动人,那就是萍水相逢,素面相见,一面之缘,再也未见。我和吴观张老先生的缘分便是这种。
吴老先生是1980年北京院第一届民选院长,是位深受众人尊敬和爱戴的老院长。吴老当选院长时我还没有出生,加上吴老退休多年,而我只是一介后生,能有缘和吴老先生相识,这还要追溯到2019年1月25日在建威大厦16层中厅,吴老给大家做得那场精彩的讲座《设计源于生活——漫谈住宅设计及细部》,晚辈有幸参加,而吴老当时已是85岁高龄。

说起最初对吴老的印象,老先生虽然年事已高,但依然精神矍铄,神清目明,声音洪亮,思路清晰,全然不像一位已至耄耋之年的老者;吴老风度儒雅,衣着朴素,和蔼可亲,平易近人,也不似想象中当年一院之长的威严肃然形象。老先生虽和颜悦色,但在场其余人都正襟危坐,我想可能这就是所谓的“不怒自威”吧。

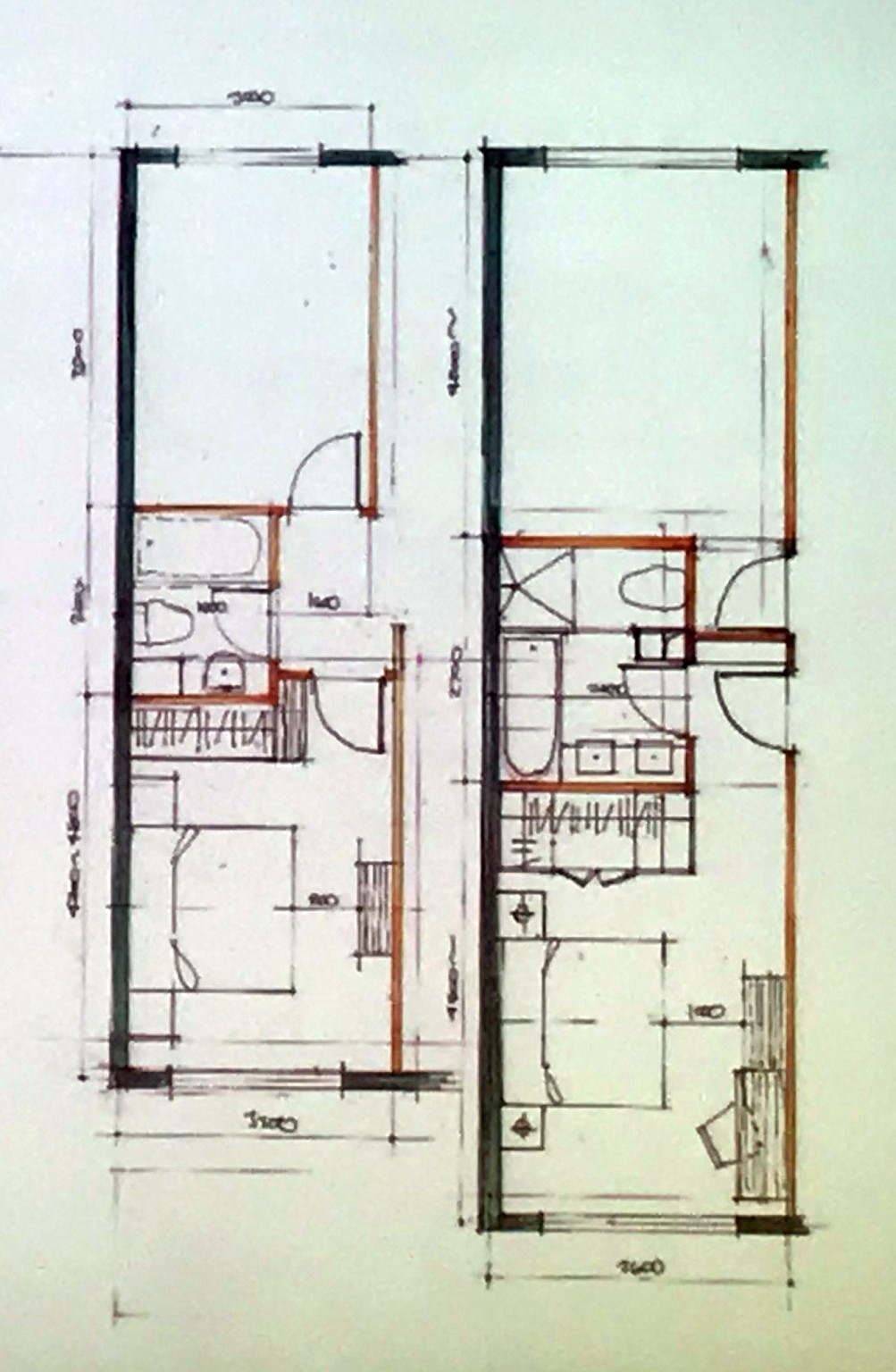
吴老先生做讲座时,身旁厚厚一打手绘稿纸,上面密密麻麻布满了吴老画图笔记。通过会上吴老分享的各种大中小精品户型;客厅、卧室、厨房、餐厅、卫生间等空间的系统设计以及对户型的点评意见等,我深刻地领略了老一辈建筑师身上那种踏实严谨的研究态度和实实在在的匠人精神。吴老先生是位身体力行、质朴务实的实干家。不像公建设计相对大刀阔斧,住宅设计讲究更多的是熟稔于人体工程学与家具尺度之上的精工细作,但吴老讲的津津有味,乐此不疲。言谈间不难看出,虽然吴老主持设计了许多知名大型公建,但设计出让老百姓满意的房子,吴老似乎更有成就感。这种快乐,不是用物质能衡量的,这一点让我感动良久。



讲到卫生间设计,吴老提及了我之前住宅设计中忽略掉的一点,卫生间设计时除了尽量四分离、三分离、干湿分离外,在条件不允许分离时,尽量将高低频率使用的卫生洁器具搭配在一起设计,这样可有效避免使用时人流交叉,例如洗衣机和洗手盆贴临,淋浴区和马桶贴临等,这一点在他的设计中均有体现。

那场讲座给我印象最深的是,吴老谈到精神独立,夫妻之间的相处之道时,他以他本人和夫人的生活模式为例,并用图纸说明如何把这种“生活方式”融入建筑设计。吴老满脸笑意地讲说他喜欢读书,夫人喜欢刷剧,夫人习惯早睡,而他则喜欢读书至夜半,为了二人生活相对自由,吴老与夫人居于两室,夫人住南房,他住北房,中间隔一卫生间,相互独立又保持联系。一针见血,完美诠释了设计源于生活,引得大家哄堂大笑。谈笑风生间自然流露出老先生对夫人难掩的爱意。

毕业来京工作后,我住房山多年,因儿子上学把房子换到西城,而正巧当时我在做新家自宅的装修设计,那是一个六层砌体结构的两居室,我家在顶层,公婆退休帮我们带孩子,三代人一起生活,我画过几版图,方案几经修改,都不是特别满意。讲座结束后,我拿出户型图,当时我只是想向前辈简单咨询些指导意见和建议。没想到吴老先生特别热情,“你把户型图发我看看”,得此机缘,我和吴老加了微信,并且后来一直保有微信联系。

加了吴老微信后,我发现吴老特别活跃,经常发朋友圈,还时不时发我一些好的链接和帖子,老先生真是特别接地气。我思忖着吴老年事已高,绝不敢放肆叨扰先生。有一天,我在家正陪娃玩,吴老突然和我视频聊天。视频聊天?!我有些意外和紧张,诚惶诚恐地接了,吴老问及新家设计功能需求,我讶然,老先生这是把我当成“甲方”了!我与吴老素昧平生,仅一面之缘,我不经意的一句话,没想到他老人家竟如此上心,我真是受宠若惊!当时我有很重的心理顾虑,怎可麻烦老先生。吴老特别可爱,见我拘谨便开始陶陶然讲他的居所,吴老先生家家具陈设十分朴素,也确实如他所讲,夫妻居于两室,他还再次就地诠释“设计源于生活”,吴老讲及他的床是张老人专用可调节电动沙发床,可调整到他读书的舒服位置,旁边紧挨着就是一矮书柜,略高于床,上面铺满了书,他说你别看凌乱,我想要的东西随手都能拿到,再旁边是衣柜和书桌,他就是在那张书桌上拿着纸、笔和尺子等完成设计的。这次和吴老视频,我对吴老有了更深的认识,如此朴素从简,回望吴老建筑师职业生涯的光辉成就,我心理上有很大反差。后来我明白了。谦谦君子,外带恭顺,内具坚忍;光华内敛,不彰不显。吴老应是一位追求内在,精神在高处的人。想来工作期间,也定是一轮明月,两袖清风了。
经过和吴老的一番闲聊漫谈,我突然发现,吴老,更像,更像是一位安详与慈爱的 “爷爷”。我渐渐放下心理负担,开始放肆提“甲方设计需求”了:
1. 客厅开放,阳光满屋;
2. 阳台是花房、画室和书房;
3. 公婆与我们同住,公婆独立一间,配备单独卫生间;
4. 儿子住房南向,有独立的床、衣柜、书柜、写字台,还有一面涂鸦墙;
5. 夫妻卧室条件可从简,可无采光通风。
吴老认真地边听边记,还问了一些更细的问题。笑谈间,他那份骨子里的建筑师情怀已是难掩。
后来更让我受宠若惊的是,转天很快的,老先生发来了一张手绘设计稿,我和家人看后都惊呆了。手稿如此之细,还注有家具尺寸。吴老还反复推敲,优化了一版设计方案。


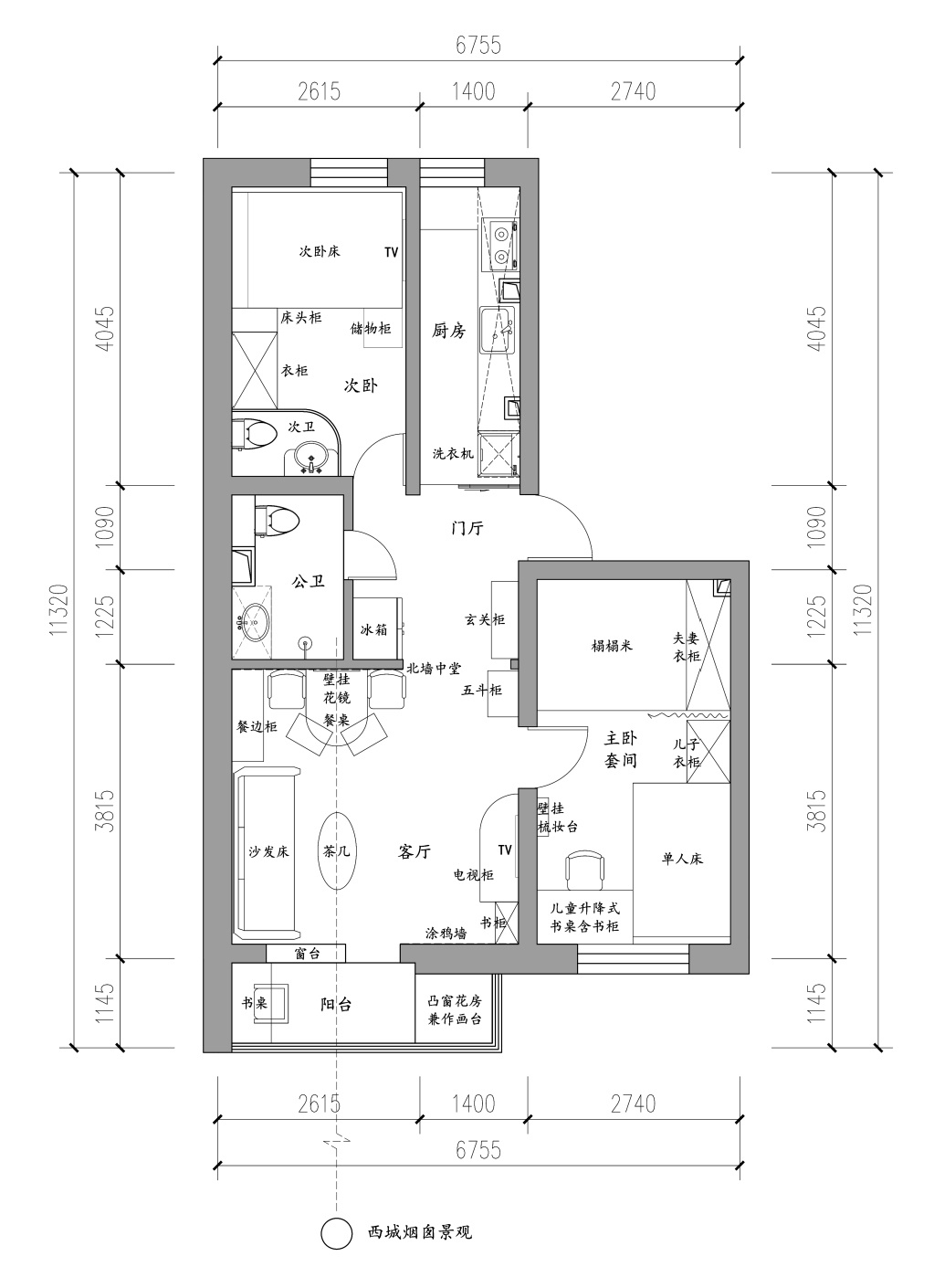
在这样一套小小的两居室里,所有设计要求都满足,不,应该是超越了功能需求,升华了我们的生活。
厨房在常规功能之外,还多排出一早餐台;
次卧设计了一干区卫生间,两张单人床的设计公婆非常喜欢;
公共卫生间外扩,有条件可做干湿分区,如前所述,高低频率使用的卫生洁器具搭配在一起设计;
餐厅的布置启发了我北墙中堂的深化设计,壁挂花镜,镜像自然;
客厅的格局是我之前排了多版,苦思冥想怎么也想不到的半围合式布局;
阳台的创意则更为大胆,阳光房式书房;
主卧做家庭房套间的想法,也是极其出乎意料的,我们与儿子互为独立又保持联系,当然最好的条件给了孩子,吴老设计之周到,光是孩子涂鸦板就给设计了三处;
吴老的整体设计极大地节省了交通空间,在这么小的两居室里,居然还挤出了一间储藏间。
这次通过和吴老“一起设计”同一住宅,让我更深刻体会了“设计源于生活”的深层次含义,设计不是冰冷无情的平平画图,背后还有活色生香、人间情味的生活。
有了吴老珍贵的方案设计手稿,我想最大化的实践吴老的设计,开始着手深化吴老图纸。但碍于现实种种因素,老房结构条件差、整体成本控制、夫妻双方意见分歧等,新家装修在吴老设计基础上又是三易其稿,几经折腾,几番颠沛,吴老的原方案精华已流失大半。临近装修时,我把最后的成图发给吴老看时说道,吴老您的设计这么好,可惜没有完全实现,深感歉意和遗憾,我能坚持和做到的也只能到这了,他说没关系,待搬了家给我发视频看看。


岁月倥偬如水流,后来新家装修又受疫情影响拖延半年,2020年疫情肆虐,人心惶惶的,在去年疫情稍松的夏天我们草草装完。
我与吴老仅是素面之缘,吴老却能如此诚恳热心地帮我家做设计,免费,无偿,义务。每每提到感激之辞,吴老总是淡淡平实一句:我只是希望通过设计能让你们一家人的生活好一些。是的,吴老高德,我和吴老的缘分简单单纯,里头无关乎物质,未流于世俗。世间难得是真情,正是真诚才宝贵。这一点是最让我感动和珍惜的。
而自从那次微信视频通话之后,不知为何,敬重与景仰之外,我开始对这位老人多了一份牵挂,就像对远方故乡奶奶的牵挂。有了这份牵挂,其间每次与吴老聊天时总会提请吴老多注意休息,保重身体,祝愿吴老康健、喜乐平安之类,也得知吴老慢慢精神头一天不如一天。
我特别喜欢看吴老发微信,他一发我就知道他身体还行,但2020年底就不再发了,现在看吴老的最后一条微信是2020年11月15日。我们2020年11月22日搬了新家,在搬了家收拾妥当后的一个周末,阳光特好,打扫干净后,我紧张而正式地,内心很有仪式感地为吴老录了两段视频发去,说了一些感谢词及祝福语。正好我们也居住了半个月,有了使用的良好反馈。但这次,吴老没有回信。后来我觉察到吴老微信渐渐沉寂,就内心忐忑,暗暗祈祷吴老平安万福。


没想到一个月后的前几日,得知吴老驾鹤西去,怅然若失,深感悲婉。吴老音容笑貌,宛如昨日。吴老离开的时候春光明媚,风和日丽,万物明净,光风霁月,一如吴老之洒落心胸。吴老恰在立春之后离去,立春乃万物起始、一切更生之义也,意味着新的一个轮回已开启。对,新的轮回,再祈吴老一路走好。

人生苦短,韶华易逝;死如秋叶,随风而去;生如夏花,怒放勃发。回忆吴老滔滔而光华的一生,成果丰硕,实乃吾辈之仰望高地。高山仰止,景行行止。无论我在哪,无论我在做什么,老前辈这份钻研实干的匠师精神、艺术源于生活的创作理念和君子灵魂在高处的品格追求已是深植于吾辈内心了。
我与吴老先生的缘分是素面之缘,清如白水,淡若清风。这种缘分不同于陌生人,比陌生人更进一步;但远不及亲人朋友,分开后又会莫名对这位老人心存牵挂。我很珍重与吴老的这份素面之缘,这份感情,淡,而,深。
一面之缘,再也未见。


公安机关备案号:44040302000222

